3 værelses lejlighed i Malling

Lej for 9.995 kr/md
Værelser3 værelser
Udlejnings periodeUbegrænset
Areal80m2
TypeLejlighed
KONTAKT UDLEJER NU

Faciliteter

Værelser3 værelser
Udlejnings periodeUbegrænset
Areal80m2
TypeLejlighed
Indflytnings dato15. apr 2026
Dato-1 dage siden

3 værelses lejlighed i Malling

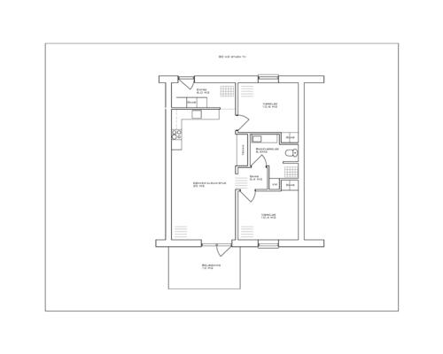
. Her kan nu lejes en lejlighed som er ideel for både singlen, parret, eller børnefamilien, da lejemålet er beliggende i kort afstand til dagligdagens fornødenheder.. Lejemålet byder på entre, 2 gode værelser, samt et skønt leverum med køkken/alrum/stue, hvorfra der er udgang til altanen.

Priser

Leje per måned9.995,00 kr/md
Forbrug0,00 kr/md
Forudbetalt leje9.995,00 kr
Depositum29.985,00 kr

Flere faciliteter

Altan: Ja
Delevenlig: Ja
Husdyr tilladt
KONTAKT UDLEJER NU
Dette websted anvender cookies til trafikanalyse og målrettede annoncer m.m.Mere info
Ok